Das Erdgeschoss

Die Einheiten bieten vielseitige Nutzungsmöglichkeiten und eignen sich hervorragend als Industrie-, Handwerks- oder Lagerflächen.

  • 3,80 m lichte Höhe

  • Stützenfreie Flächen ermöglichen maximale Flexibilität bei Nutzung und Raumgestaltung

  • 2 Sektionaltore pro Einheit (3,5 m x 3,3 m)

  • Beheizung über effiziente Betonkernaktivierung

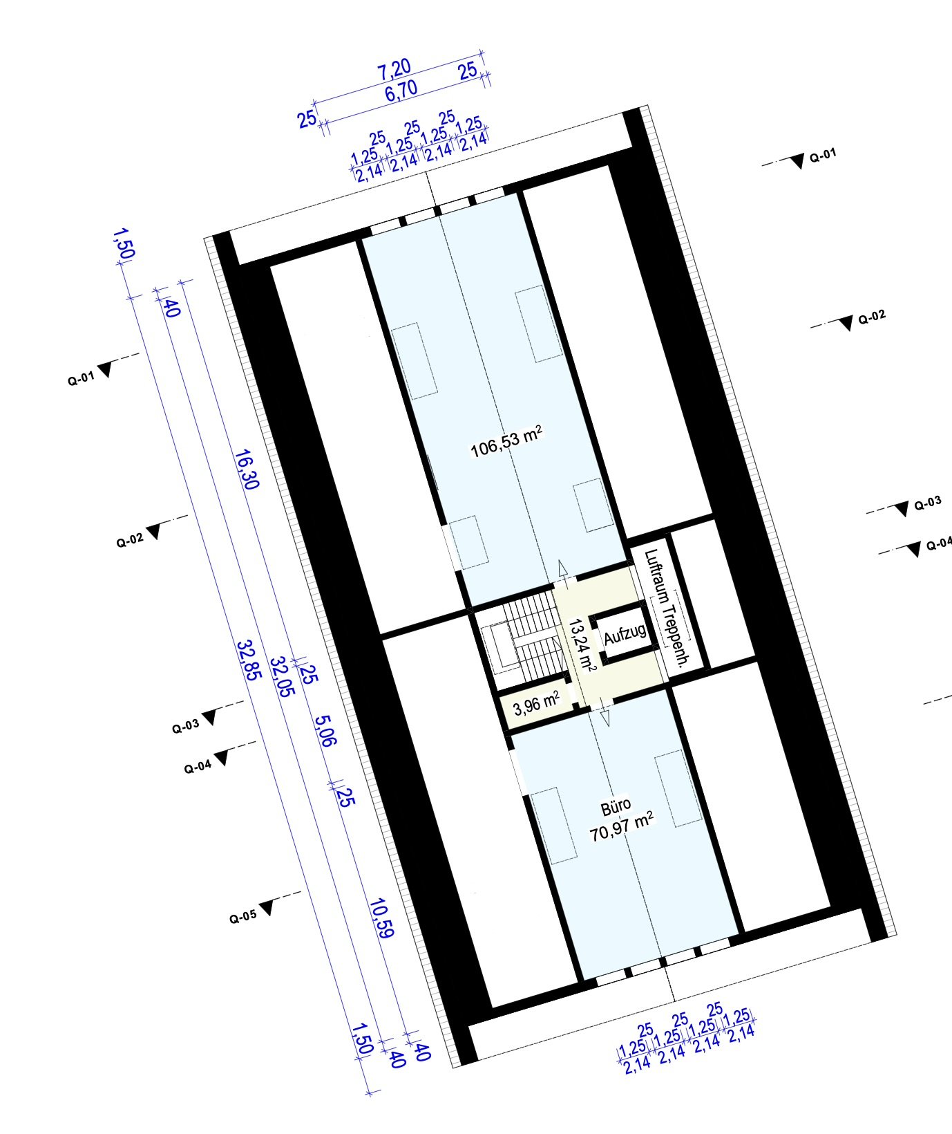
Das Obergeschoss

Auf dieser Ebene entstehen helle, lichtdurchflutete Büroflächen mit offenem Raumkonzept – flexibel gestaltbar und optimal an Ihre Bedürfnisse anpassbar.

  • Personenaufzug

  • KFZ- / Lastenlift bis zu 2,5t ( 6,1 m x 2,5 m)

  • Eine Klimatisierung der Räume ist möglich und sorgt zu jeder Jahreszeit für optimale Arbeitsbedingungen.

  • Stützenfreie Flächen ermöglichen maximale Flexibilität bei Nutzung und Raumgestaltung. Die farbig eingezeichneten Innenwände dienen ausschließlich als Gestaltungsvorschläge.

  • Moderne sanitäre Anlagen mit stehen je Einheit zur Verfügung

Das Dachgeschoss

Diese modernen Büroflächen bieten den idealen Rahmen für kleine Teams oder eine exklusive Chefetage.

  • großzügige Nord-und Südverglasung mit zusätzlichen Dachflächenfenstern für optimale Lichtverhältnisse

  • Eine Klimatisierung der Räume ist möglich und sorgt zu jeder Jahreszeit für optimale Arbeitsbedingungen.

  • Personenaufzug

  • Moderne sanitäre Anlagen stehen je Einheit zur Verfügung

In Bestlage zwischen Deutschlands schönsten Seen, den Alpen & München

 
Zurück
Zurück

Ausstattung